38 locations trouvées
Küsnacht
An der begehrten Alten Landstrasse 131 in 8700 Küsnacht b...
Per 16.04.2026 oder nach Vereinbarung vermieten wir die h...
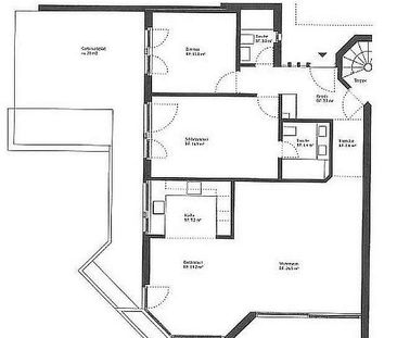
Wir vermieten diese grosszügige und lichtdurchflutete 3.5...
Wir vermieten per 1. Mai 2026 diese 3.5-Zimmer-Maisonette...
Per sofort oder nach Vereinbarung diese schöne 5.5-Zimmer...
Per sofort oder nach Vereinbarung vermieten wir diese sch...
Recevez un e-mail dès qu'un bien similaire est disponible.
Wir vermieten diese 3.5-Zimmerwohnung im Hochparterre ein...
This terraced apartment in Küsnacht enjoys a quiet locati...
Per sofort oder nach Vereinbarung vermieten wir **befrist...
Schöne Wohnung in einem historischen Gebäude. Durchgehend...
We are renting this 3.5-room apartment on the ground floo...
Wir vermieten diese schöne 3.5-Zimmerwohnung an der Mitte...
Willkommen in Ihrem neuen Zuhause! Diese attraktive 3.5 Z...
We are renting this apartment (until 31.08.2026 due to re...
We are renting this 6-room apartment on the ground floor ...
Diese Terrassenwohnung in Küsnacht bietet eine ruhige Lag...
We are renting this beautiful 3.5-room apartment in Küsna...
Discover the best of Zurich, with this two bedroom apartm...
An der Liegenschaft Schiffliweg 8 erwartet Sie diese char...